• {{ item.product_type }}

    {{ item.brand_name }}

    {{ item.product_name }}

    {{ item.old_price }} грн/кв.м

  • Список уведомлений пуст
{{ poll.title }}
Фото: КГ Freeland

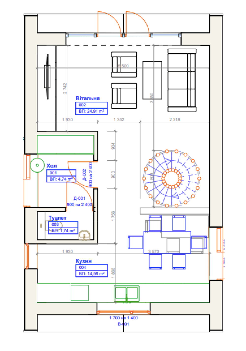
КГ Freeland - Эдам (86 кв.м)

Коттеджные городки

Проект от:
Украинский Дом

Эдам

Коттедж

Построено

1 / 2
  • Эдам
  • Эдам

Планировки

  • 1 этаж

  • 2 этаж

Построено

86 кв.м

2

2

34651

грн/кв.м

Планировки

  • 1 этаж

    Фото: 1 этаж
  • 2 этаж

    Фото: 2 этаж
{{ poll.title }}

Используя сервисы Zagorodna.com, вы соглашаетесь с Политикой использования файлов cookie. Мы используем файлы cookie, необходимые для аналитики, персонализации и рекламы.