• {{ item.product_type }}

    {{ item.brand_name }}

    {{ item.product_name }}

    {{ item.old_price }} грн/кв.м

  • Список уведомлений пуст
{{ poll.title }}
Фото: КГ Escape

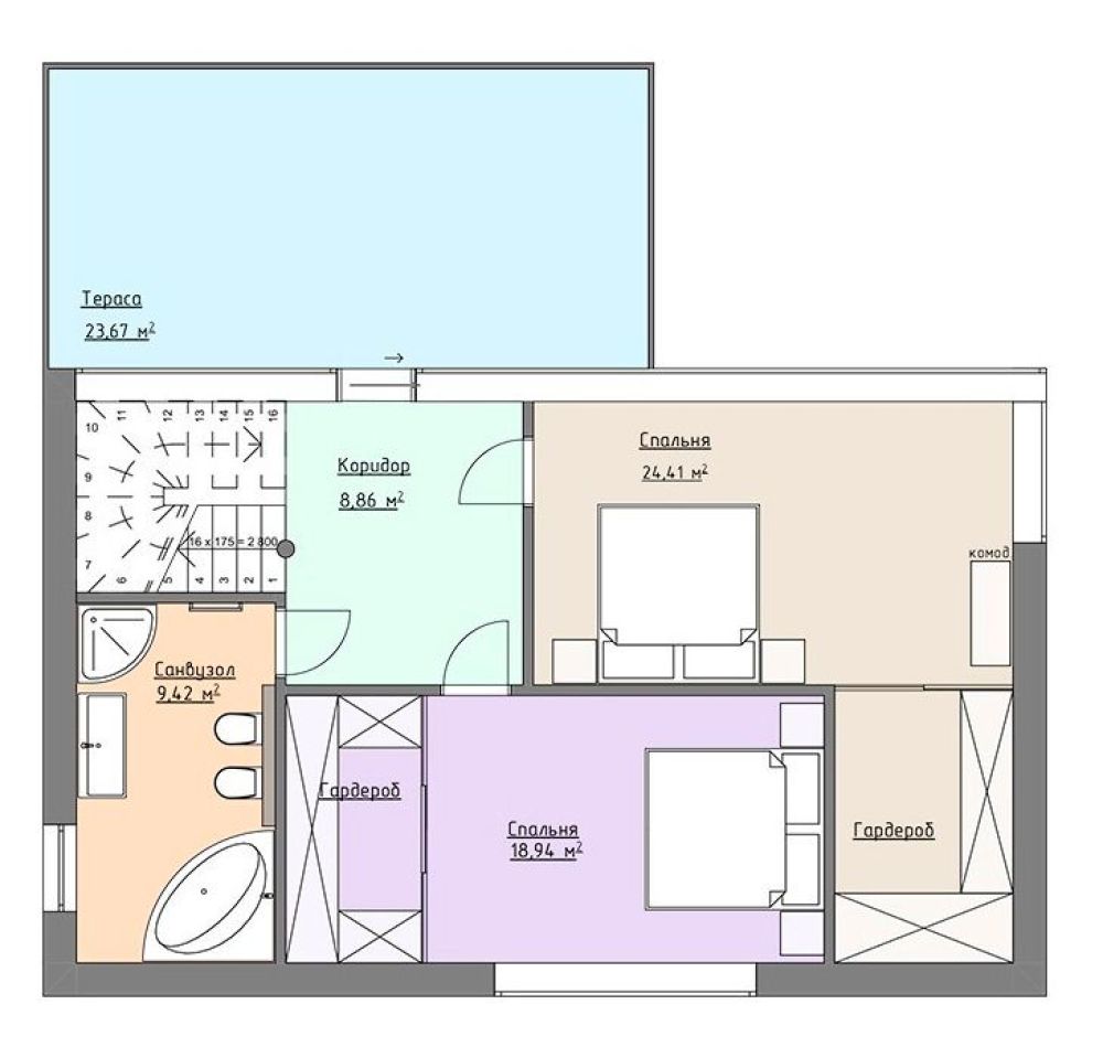
КГ Escape - Тип 6 (177 кв.м)

Коттеджные городки

Проект от:
LevBud

Тип 6

Коттедж

Продано

1 / 2
  • Тип 6
  • Тип 6

Планировки

  • 1 этаж

  • 2 этаж

Продано

177 кв.м

2

3

0

грн/кв.м

Планировки

  • 1 этаж

    Фото: 1 этаж
  • 2 этаж

    Фото: 2 этаж
{{ poll.title }}

Используя сервисы Zagorodna.com, вы соглашаетесь с Политикой использования файлов cookie. Мы используем файлы cookie, необходимые для аналитики, персонализации и рекламы.