• {{ item.product_type }}

    {{ item.brand_name }}

    {{ item.product_name }}

    {{ item.old_price }} грн/кв.м

  • Список уведомлений пуст
{{ poll.title }}
Фото: КГ Beverly Hills Residence

КГ Beverly Hills Residence - Scandinavian Taun (110 кв.м)

Коттеджные городки

Проект от:
Бест Буд

Scandinavian Taun

Таунхаус

Строится

Планировки

  • 1 этаж

  • 2 этаж

Строится

110 кв.м

2

4

25272

грн/кв.м

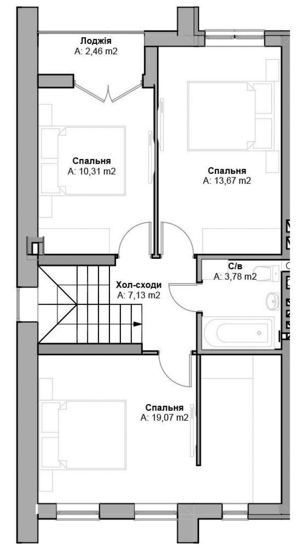
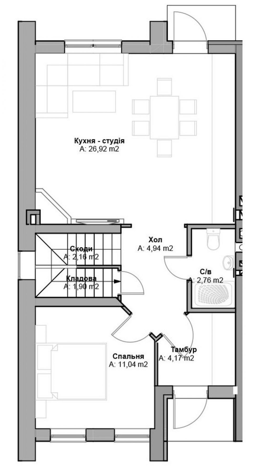
Планировки

  • 1 этаж

    Фото: 1 этаж
  • 2 этаж

    Фото: 2 этаж
{{ poll.title }}

Используя сервисы Zagorodna.com, вы соглашаетесь с Политикой использования файлов cookie. Мы используем файлы cookie, необходимые для аналитики, персонализации и рекламы.