• {{ item.product_type }}

    {{ item.brand_name }}

    {{ item.product_name }}

    {{ item.old_price }} грн/кв.м

  • Список уведомлений пуст
{{ poll.title }}
Фото: КГ BEREGA

КГ BEREGA - M (184 кв.м)

Коттеджные городки

M

Таунхаус

Строится

Планировки

  • 1 этаж

  • 2 этаж

  • Терраса

Строится

184 кв.м

2

6

27663

грн/кв.м

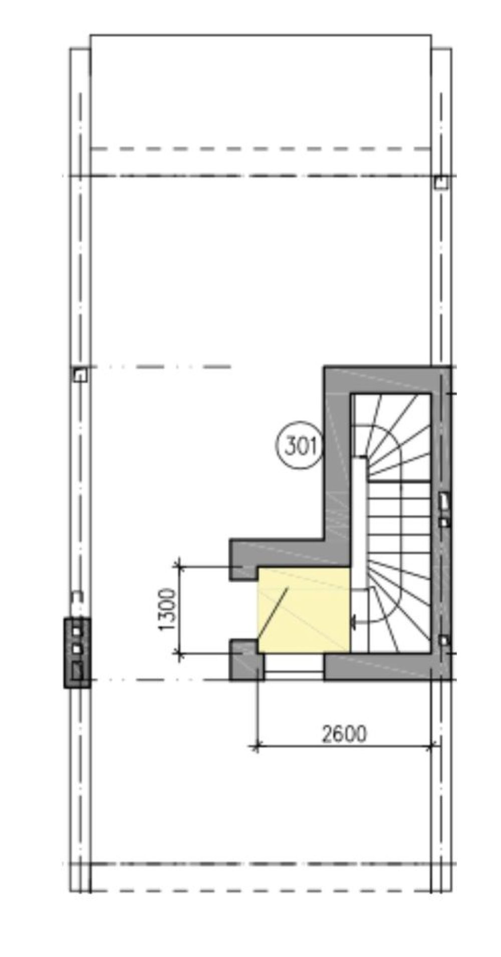
Планировки

  • 1 этаж

    Фото: 1 этаж
  • 2 этаж

    Фото: 2 этаж
  • Терраса

    Фото: Терраса
{{ poll.title }}

Используя сервисы Zagorodna.com, вы соглашаетесь с Политикой использования файлов cookie. Мы используем файлы cookie, необходимые для аналитики, персонализации и рекламы.