• {{ item.product_type }}

    {{ item.brand_name }}

    {{ item.product_name }}

    {{ item.old_price }} грн/кв.м

  • Список уведомлений пуст
{{ poll.title }}
Фото: Таунхаусы «Семейный»

Таунхаусы «Семейный» - Проект 1 (132 кв.м)

Коттеджные городки

Проект 1

Таунхаус

Продано

Планировки

  • 1 этаж

  • 2 этаж

  • 3 этаж

Продано

132 кв.м

3

4

грн/кв.м

Планировки

  • 1 этаж

    Фото: 1 этаж
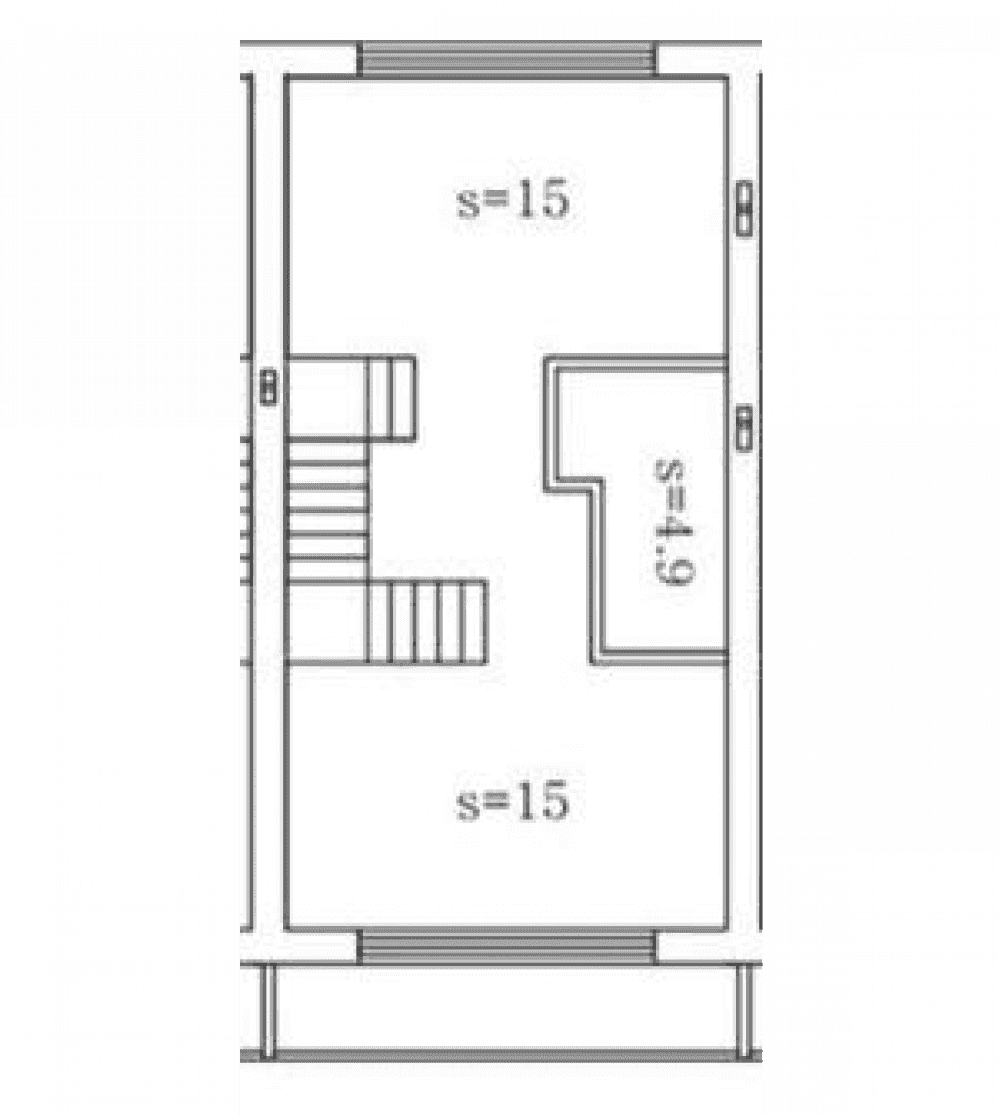
  • 2 этаж

    Фото: 2 этаж
  • 3 этаж

    Фото: 3 этаж
{{ poll.title }}

Используя сервисы Zagorodna.com, вы соглашаетесь с Политикой использования файлов cookie. Мы используем файлы cookie, необходимые для аналитики, персонализации и рекламы.