{{ poll.title }}
КГ «Лесное озеро» - Ницца (55 кв.м)
Коттеджные городки
Проект от:
Евродом
Ницца
Коттедж
Продано
1
/
3
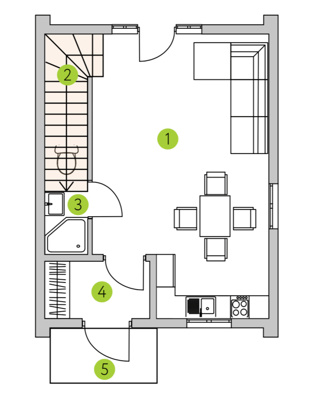
Планировки
-
1 этаж
-
2 этаж
Продано
55 кв.м
2
2
0
грн/кв.мДругие типовые проекты
Коттеджи
-
от 2632440 грн
60 кв.м
-
от 3030000 грн
80 кв.м
-
от 3579975 грн
105 кв.м
-
от 3909916 грн
106 кв.м
-
от 3540000 грн
100 кв.м
-
от 3979884 грн
122 кв.м
-
от 4130000 грн
140 кв.м
-
205 кв.м
-
от 5939884 грн
236 кв.м
-
91 кв.м
-
161 кв.м
-
64 кв.м
-
77 кв.м
-
34 кв.м
-
159 кв.м
-
220 кв.м
-
170 кв.м
-
159 кв.м
-
50 кв.м
-
63 кв.м
-
90 кв.м
-
90 кв.м
-
97 кв.м
-
106 кв.м
-
126 кв.м
-
138 кв.м
-
152 кв.м
-
72 кв.м
Планировки
-
1 этаж
-
2 этаж
{{ poll.title }}
-
1 этаж
-
2 этаж