• {{ item.product_type }}

    {{ item.brand_name }}

    {{ item.product_name }}

    {{ item.old_price }} грн/кв.м

  • Список уведомлений пуст
{{ poll.title }}
Фото: КГ "Буковая роща"

КГ "Буковая роща" - Проект 3 (312 кв.м)

Коттеджные городки

Проект от:
Etalon House

Проект 3

Коттедж

Продано

1 / 3
  • Проект 3
  • Проект 3
  • Проект 3

Планировки

  • Цокольный этаж

  • 1 этаж, гараж

  • 2 этаж

Продано

312 кв.м

2

3

0

грн/кв.м

Планировки

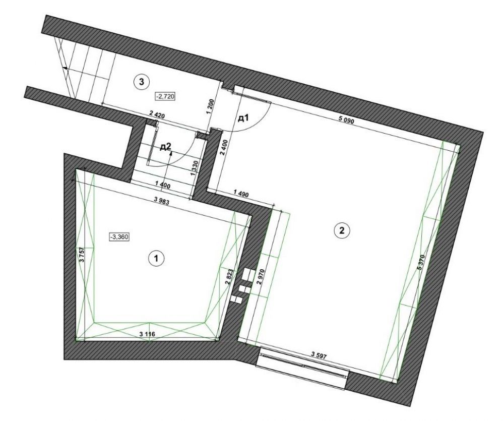
  • Цокольный этаж

    Фото: Цокольный этаж
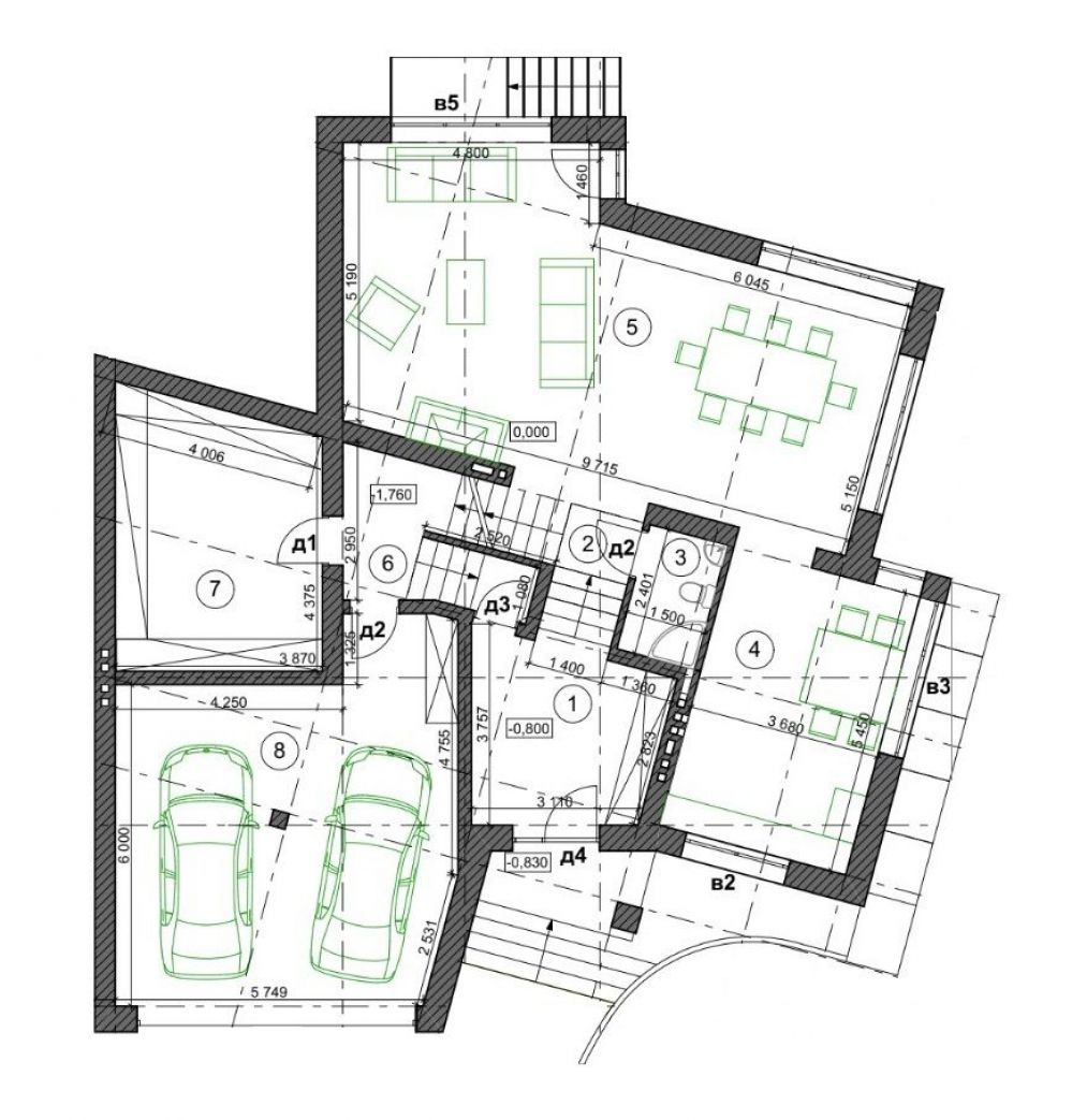
  • 1 этаж, гараж

    Фото: 1 этаж, гараж
  • 2 этаж

    Фото: 2 этаж
{{ poll.title }}

Используя сервисы Zagorodna.com, вы соглашаетесь с Политикой использования файлов cookie. Мы используем файлы cookie, необходимые для аналитики, персонализации и рекламы.