• {{ item.product_type }}

    {{ item.brand_name }}

    {{ item.product_name }}

    {{ item.old_price }} грн/кв.м

  • Список повідомлень порожній
{{ poll.title }}
Фото: «Северинівка» КМ

«Северинівка» КМ - Проєкт 10 (546 кв.м)

Котеджні містечка

Проєкт від:
Техно

Проєкт 10

Котедж

Збудовано

Планування

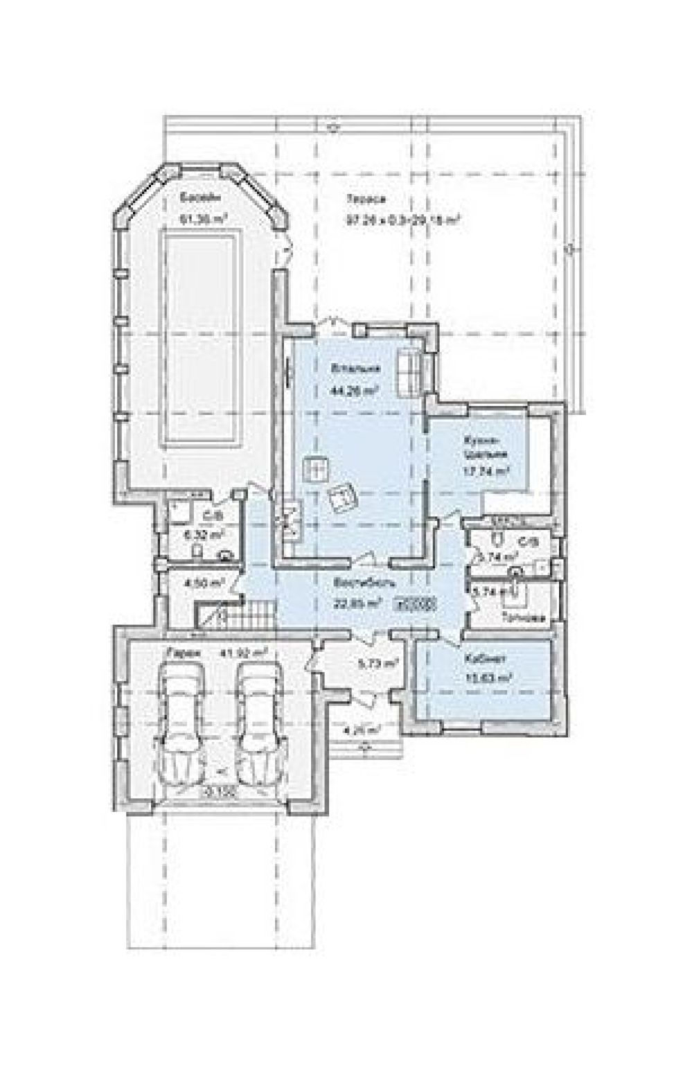
  • 1 поверх, гараж

  • 2 поверх

Збудовано

546 кв.м

2

4

9890

грн/кв.м

Планування

  • 1 поверх, гараж

    Фото: 1 поверх, гараж
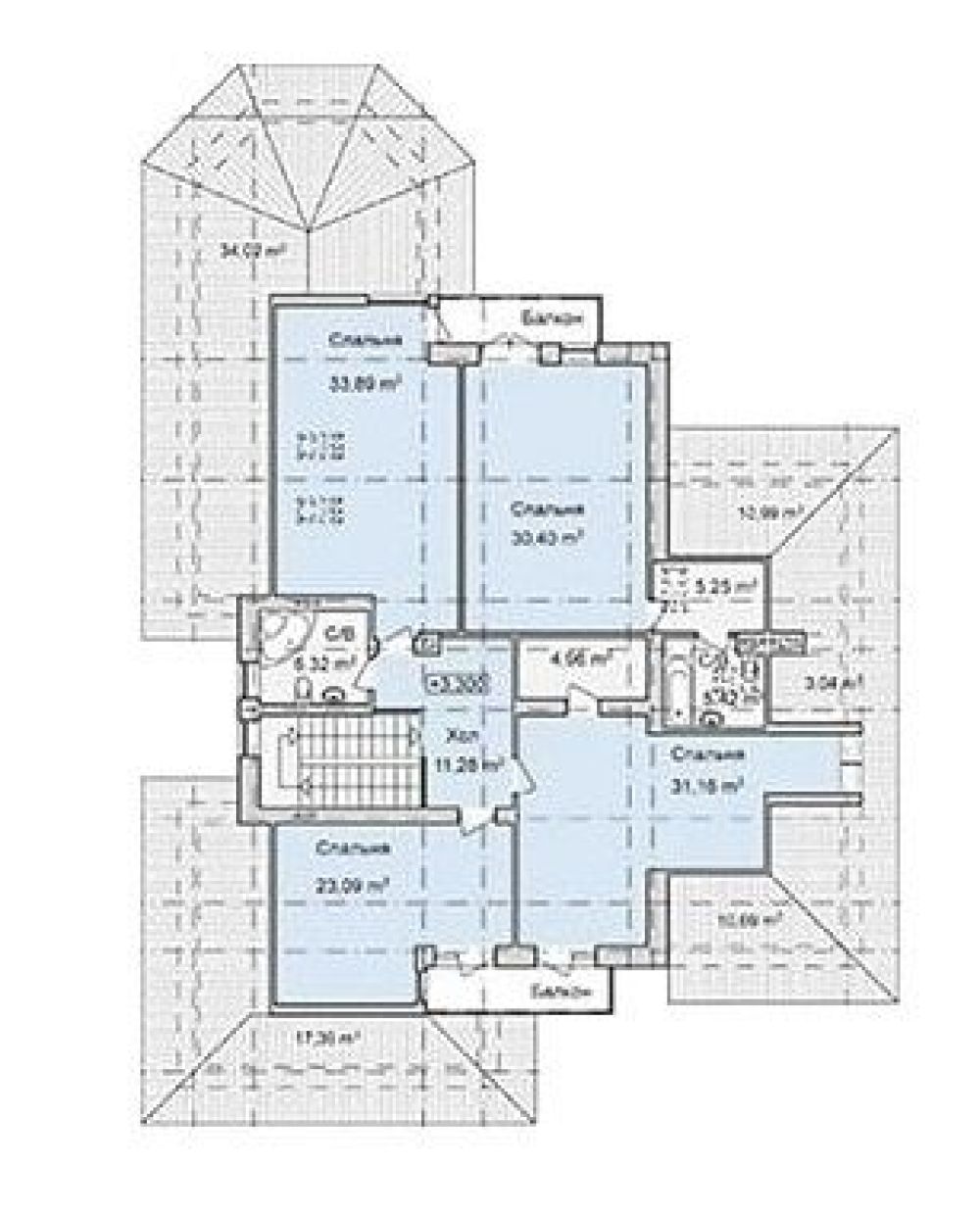
  • 2 поверх

    Фото: 2 поверх
{{ poll.title }}

Використовуючи сервіси Zagorodna.com, ви погоджуєтесь з Політикою використання файлів cookie. Ми використовуємо файли cookie, необхідні для аналітики, персоналізації та реклами.