• {{ item.product_type }}

    {{ item.brand_name }}

    {{ item.product_name }}

    {{ item.old_price }} грн/кв.м

  • Список повідомлень порожній
{{ poll.title }}
Фото: Green Lake КМ

Green Lake КМ - Тип С (165 кв.м)

Котеджні містечка

Тип С

Котедж

Будується

1 / 2
  • Тип С
  • Тип С

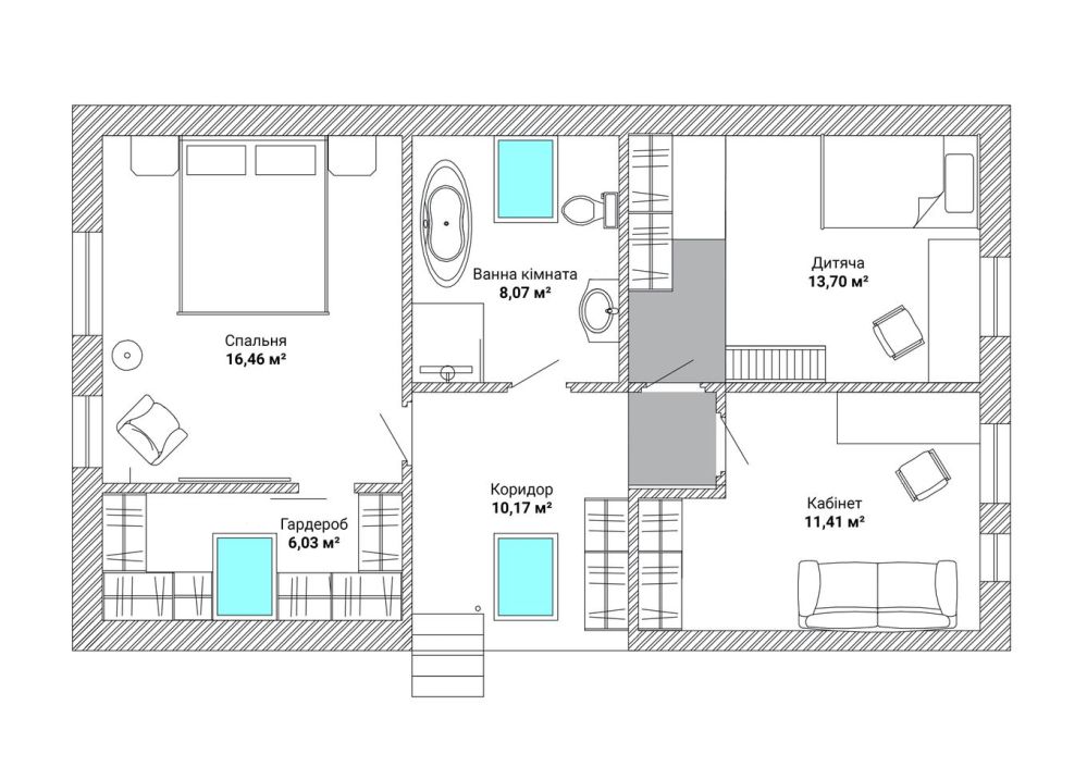
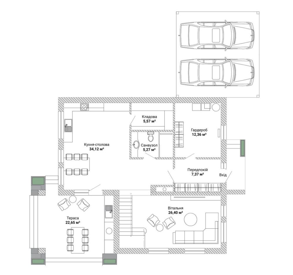
Планування

  • 1 поверх

  • 2 поверх

Будується

165 кв.м

2

3

40485

грн/кв.м

Планування

  • 1 поверх

    Фото: 1 поверх
  • 2 поверх

    Фото: 2 поверх
{{ poll.title }}

Використовуючи сервіси Zagorodna.com, ви погоджуєтесь з Політикою використання файлів cookie. Ми використовуємо файли cookie, необхідні для аналітики, персоналізації та реклами.