• {{ item.product_type }}

    {{ item.brand_name }}

    {{ item.product_name }}

    {{ item.old_price }} грн/кв.м

  • Список повідомлень порожній
{{ poll.title }}
Фото: «C'House» таунхауси

«C'House» таунхауси - Проект 2 (100 кв.м)

Котеджні містечка

Проєкт від:
Strakhovskyi Group

Проект 2

Таунхаус

Продано

1 / 2
  • Проект 2
  • Проект 2

Планування

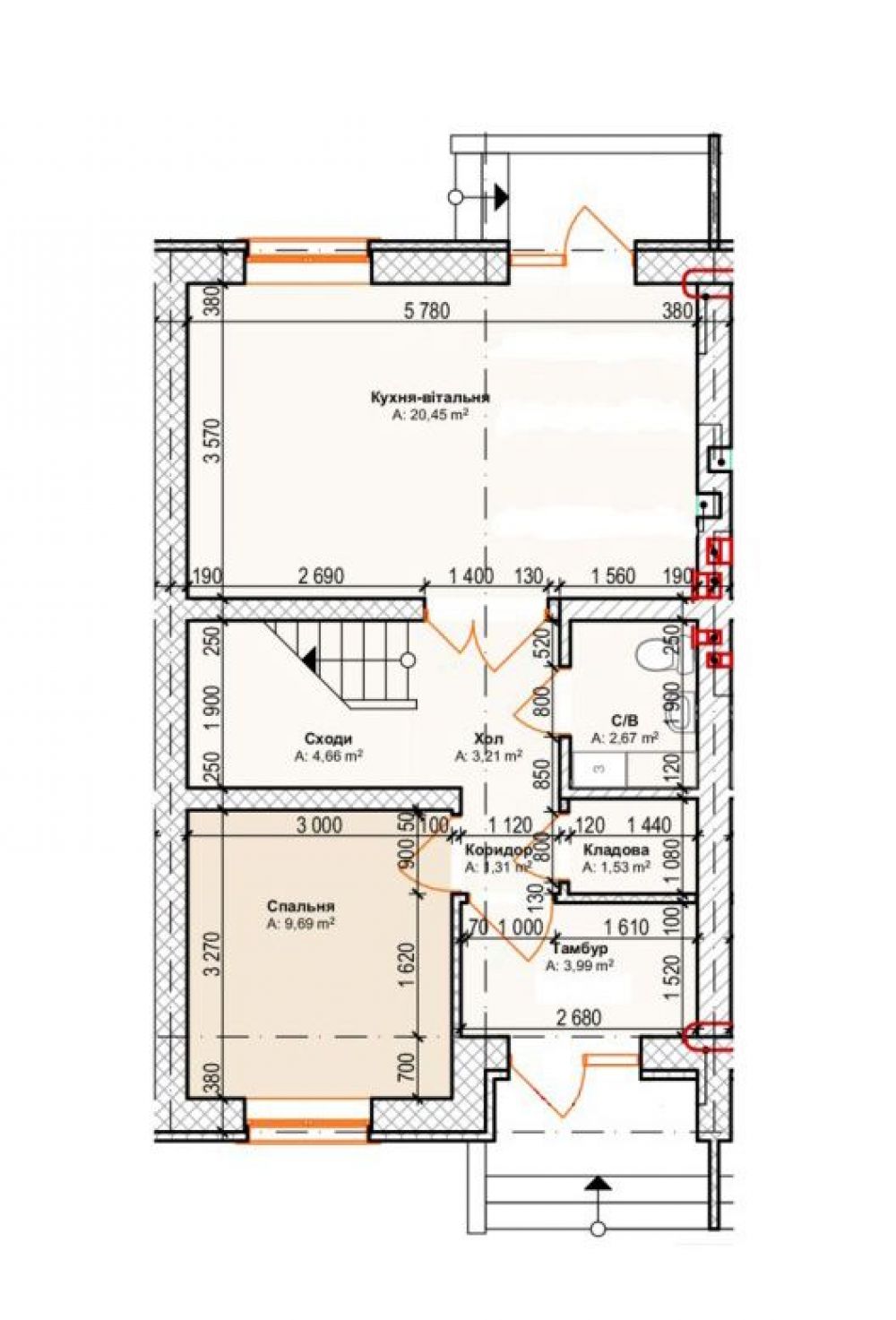
  • 1 поверх

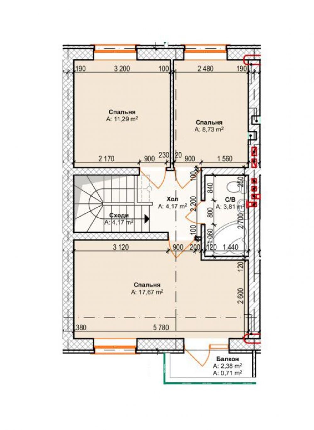
  • 2 поверх

Продано

100 кв.м

2

4

0

грн/кв.м

Планування

  • 1 поверх

    Фото: 1 поверх
  • 2 поверх

    Фото: 2 поверх
{{ poll.title }}

Використовуючи сервіси Zagorodna.com, ви погоджуєтесь з Політикою використання файлів cookie. Ми використовуємо файли cookie, необхідні для аналітики, персоналізації та реклами.