• {{ item.product_type }}

    {{ item.brand_name }}

    {{ item.product_name }}

    {{ item.old_price }} грн/кв.м

  • Список повідомлень порожній
{{ poll.title }}
Фото: Таунхаус „Царське село“

Таунхаус „Царське село“ - Проект 4 (94 кв.м)

Котеджні містечка

Проект 4

Таунхаус

Збудовано

Планування

  • 1 этаж

  • 2 этаж

  • 3 этаж

Збудовано

94 кв.м

3

3

грн/кв.м

Планування

  • 1 этаж

    Фото: 1 этаж
  • 2 этаж

    Фото: 2 этаж
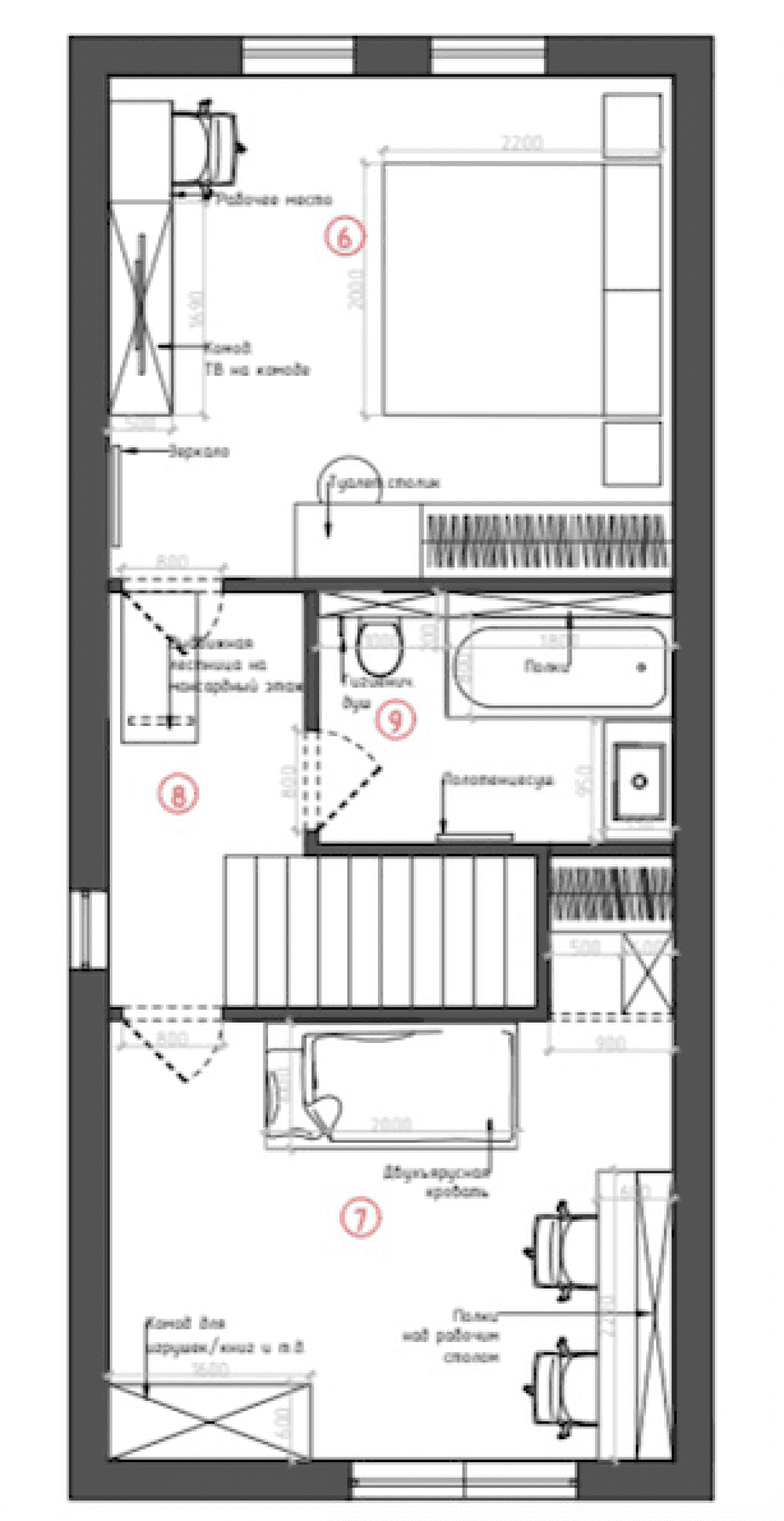
  • 3 этаж

    Фото: 3 этаж
{{ poll.title }}

Використовуючи сервіси Zagorodna.com, ви погоджуєтесь з Політикою використання файлів cookie. Ми використовуємо файли cookie, необхідні для аналітики, персоналізації та реклами.