• {{ item.product_type }}

    {{ item.brand_name }}

    {{ item.product_name }}

    {{ item.old_price }} грн/кв.м

  • Список повідомлень порожній
{{ poll.title }}
Фото: «Провесінь» КМ

«Провесінь» КМ - Фіалка (212 кв.м)

Котеджні містечка

Проєкт від:
Нове місто

Фіалка

Котедж

Збудовано

1 / 3
  • Фіалка
  • Фіалка
  • Фіалка

Планування

  • 1 поверх, гараж

  • 2 поверх

Збудовано

212 кв.м

2

6

60330

грн/кв.м

Планування

  • 1 поверх, гараж

    Фото: 1 поверх, гараж
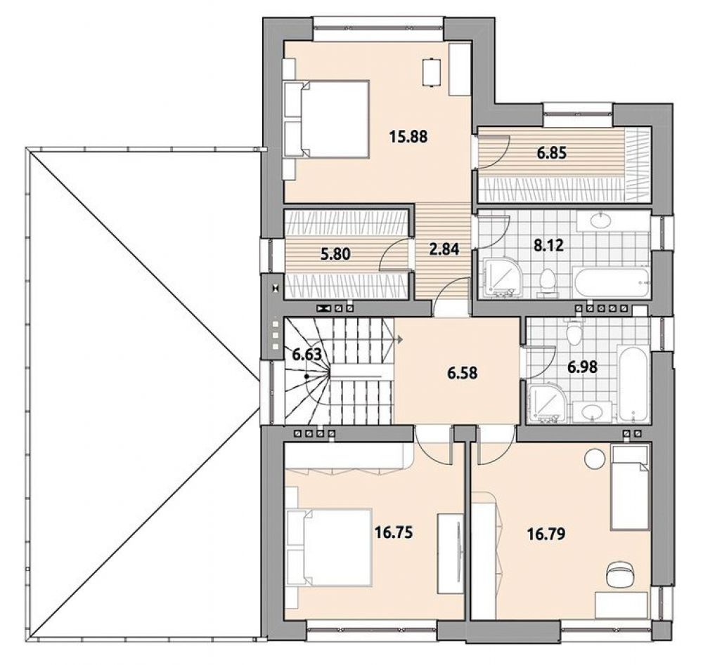
  • 2 поверх

    Фото: 2 поверх
{{ poll.title }}

Використовуючи сервіси Zagorodna.com, ви погоджуєтесь з Політикою використання файлів cookie. Ми використовуємо файли cookie, необхідні для аналітики, персоналізації та реклами.