{{ poll.title }}
"Щастя" КМ - Данія 3 (з ремонтом) (202 кв.м)
Котеджні містечка
Данія 3 (з ремонтом)
Котедж
Продано

1
/
3
Планування
-
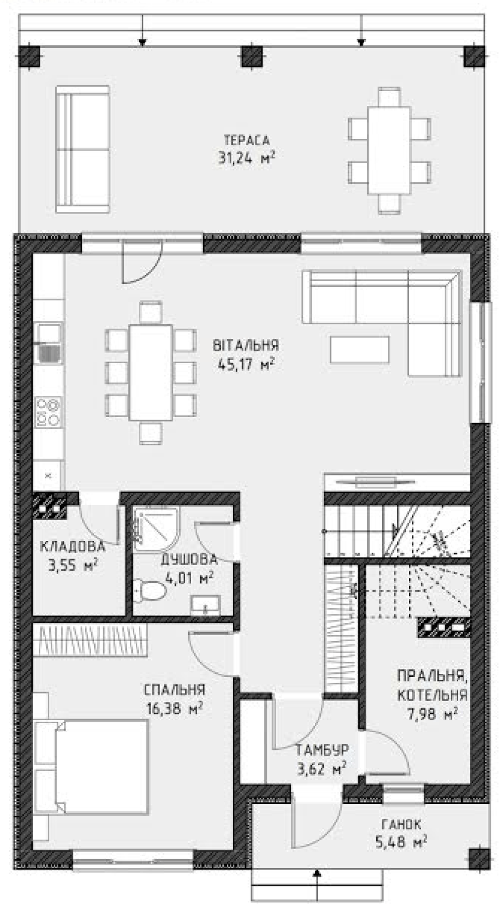
1 поверх
-
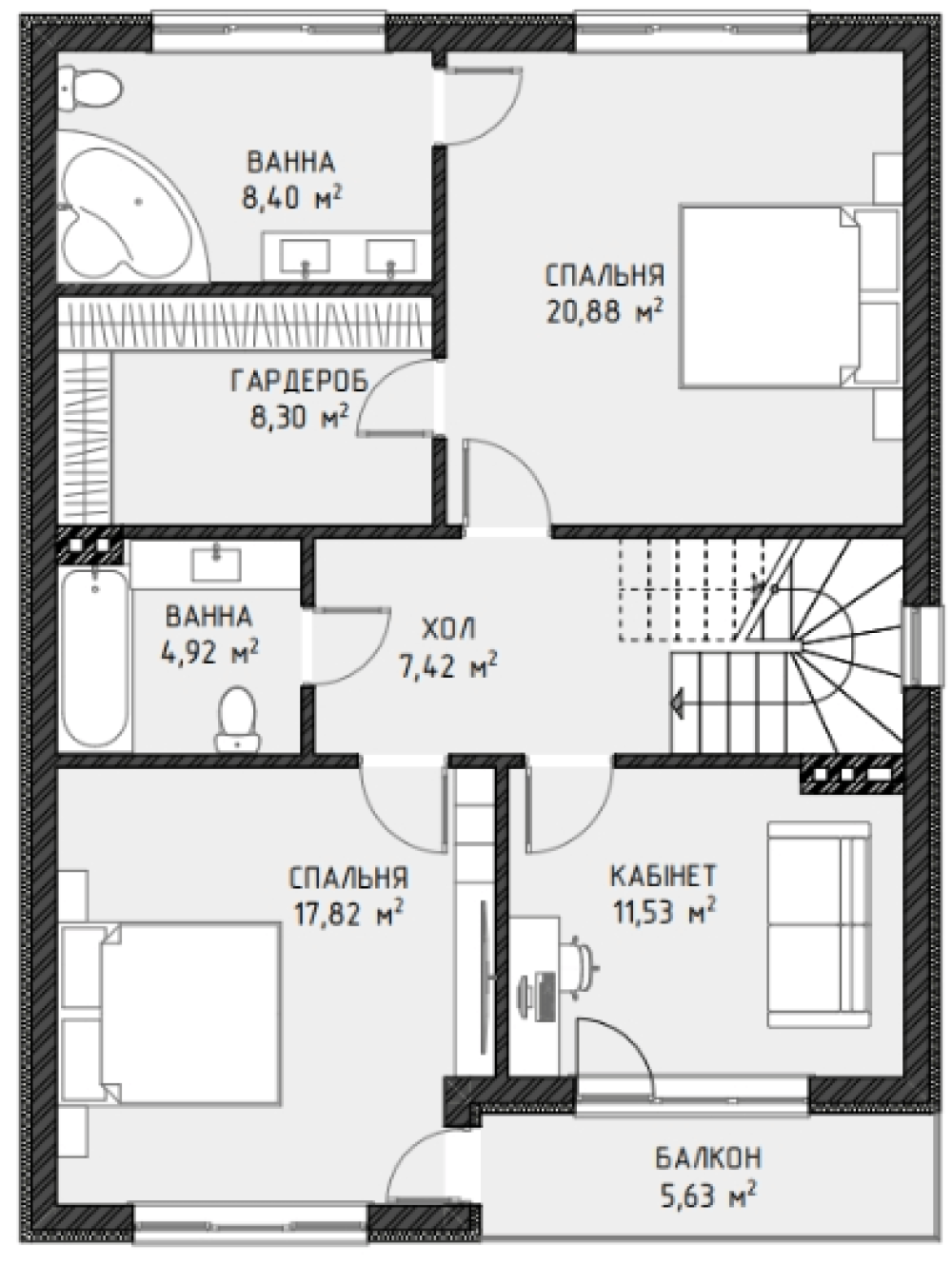
2 поверх
Продано
202 кв.м
2
4
0
грн/кв.мІнші типові проекти
Котеджі
-
от 8419840 грн
184 кв.м
-
от 9729901 грн
227 кв.м
-
от 8570000 грн
200 кв.м
-
от 9730000 грн
200 кв.м
-
от 9730000 грн
250 кв.м
-
230 кв.м
-
от 10100049 грн
201 кв.м
-
от 10400000 грн
260 кв.м
-
270 кв.м
-
202 кв.м
-
257 кв.м
-
270 кв.м
-
284 кв.м
-
205 кв.м
-
165 кв.м
-
257 кв.м
-
200 кв.м
-
205 кв.м
-
220 кв.м
Дуплекси
Таунхауси
-
от 7040070 грн
190 кв.м
Планування
-
1 поверх
-
2 поверх
{{ poll.title }}
-
1 поверх
-
2 поверх