• {{ item.product_type }}

    {{ item.brand_name }}

    {{ item.product_name }}

    {{ item.old_price }} грн/кв.м

  • Список повідомлень порожній
{{ poll.title }}
Фото: КМ RAY-ELENOVKA

КМ RAY-ELENOVKA - Проект 4 (320 кв.м)

Котеджні містечка

Проект 4

Котедж

Продано

1 / 3
  • Проект 4
  • Проект 4
  • Проект 4

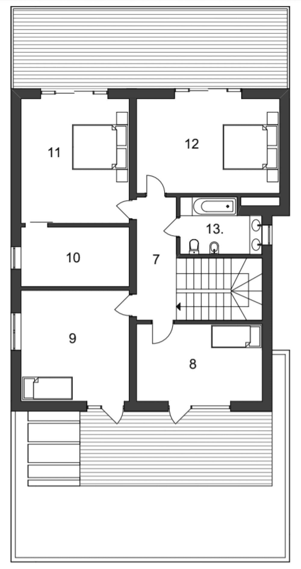
Планування

  • 1 этаж, гараж

  • 2 этаж

Продано

320 кв.м

2

4

0

грн/кв.м

Планування

  • 1 этаж, гараж

    Фото: 1 этаж, гараж
  • 2 этаж

    Фото: 2 этаж
{{ poll.title }}

Використовуючи сервіси Zagorodna.com, ви погоджуєтесь з Політикою використання файлів cookie. Ми використовуємо файли cookie, необхідні для аналітики, персоналізації та реклами.