• {{ item.product_type }}

    {{ item.brand_name }}

    {{ item.product_name }}

    {{ item.old_price }} грн/кв.м

  • Список повідомлень порожній
{{ poll.title }}
Фото: Premium Space КМ

Premium Space КМ - Дуплекс (157 кв.м)

Котеджні містечка

Проєкт від:
ГК «Premium Space»

Дуплекс

Дуплекс

Будується

1 / 3
  • Дуплекс
  • Дуплекс
  • Дуплекс

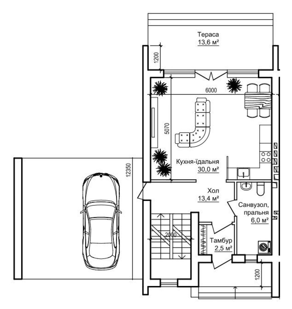
Планування

  • 1 поверх

  • 2 поверх

  • 3 поверх

Будується

157 кв.м

2

4

37834

грн/кв.м

Планування

  • 1 поверх

    Фото: 1 поверх
  • 2 поверх

    Фото: 2 поверх
  • 3 поверх

    Фото: 3 поверх
{{ poll.title }}

Використовуючи сервіси Zagorodna.com, ви погоджуєтесь з Політикою використання файлів cookie. Ми використовуємо файли cookie, необхідні для аналітики, персоналізації та реклами.