• {{ item.product_type }}

    {{ item.brand_name }}

    {{ item.product_name }}

    {{ item.old_price }} грн/кв.м

  • Список повідомлень порожній
{{ poll.title }}
Фото: КМ "Лісовий Масив"

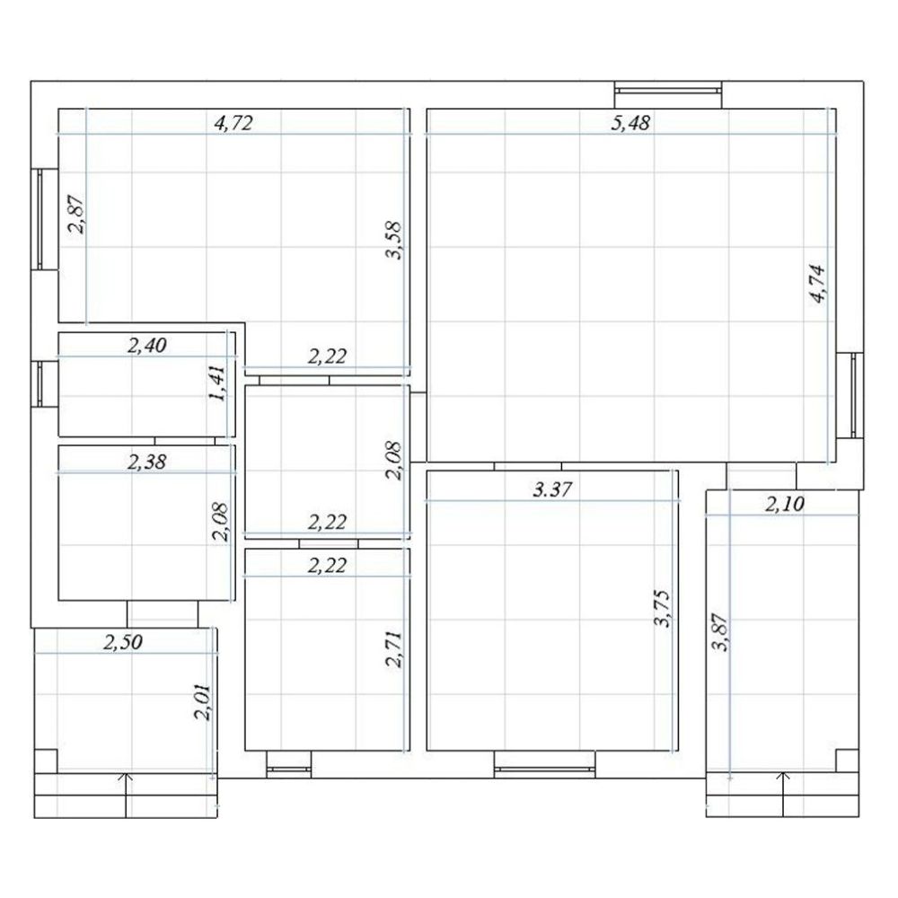
КМ "Лісовий Масив" - МАНЮНЯ (93 кв.м)

Котеджні містечка

МАНЮНЯ

Котедж

Будується

1 / 2
  • МАНЮНЯ
  • МАНЮНЯ

Планування

  • 1 поверх

Будується

93 кв.м

1

3

29000

грн/кв.м

Планування

  • 1 поверх

    Фото: 1 поверх
{{ poll.title }}

Використовуючи сервіси Zagorodna.com, ви погоджуєтесь з Політикою використання файлів cookie. Ми використовуємо файли cookie, необхідні для аналітики, персоналізації та реклами.