• {{ item.product_type }}

    {{ item.brand_name }}

    {{ item.product_name }}

    {{ item.old_price }} грн/кв.м

  • Список повідомлень порожній
{{ poll.title }}
Фото: КМ Hausplusland Крушинка

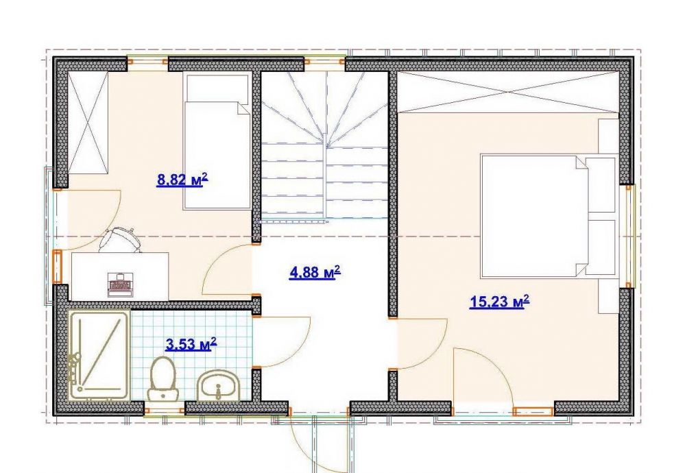
КМ Hausplusland Крушинка - Проєкт COMPACT 2-69-82 (82 кв.м)

Котеджні містечка

Проєкт від:
HAUSPLUSLAND

Проєкт COMPACT 2-69-82

Котедж

Продано

1 / 3
  • Проєкт COMPACT 2-69-82
  • Проєкт COMPACT 2-69-82
  • Проєкт COMPACT 2-69-82

Планування

  • 1 поверх

  • 2 поверх

Продано

82 кв.м

2

3

грн/кв.м

Планування

  • 1 поверх

    Фото: 1 поверх
  • 2 поверх

    Фото: 2 поверх
{{ poll.title }}

Використовуючи сервіси Zagorodna.com, ви погоджуєтесь з Політикою використання файлів cookie. Ми використовуємо файли cookie, необхідні для аналітики, персоналізації та реклами.